IMA - Fehlerbehebung

Zuletzt geändert von Paul Hermann am 2025/10/20 21:35

Das IMA Bearbeitungszentrum kann im normalen Betrieb, auch ohne das die Nutzer etwas falsch machen, in Fehlerzustände kommen, deren Behebung nicht trivial ist.

Es gibt Fehlerbehebungen, die nicht von den Nutzern selbst durchgeführt werden dürfen (Lebensgefahr!). Ebenso dürfen keine eigenen Versuche zur Behebung von nicht im Wiki dokumentierten Fehler unternommen werden. In beiden Fällen ist eine Meldung im #Schadensmelder mit möglichst genauer Beschreibung aller zuvor vorgenommenen Schritte erforderlich!

Im Folgenden sind bisher aufgetretene Fehler dokumentiert und mit detaillierten Anleitungen zur Behebung versehen, welche exakt befolgt werden müssen, da nicht korrekt und in dieser Reihenfolge ausgeführte Schritte zu schweren Kollisionen mit großen Schäden führen können. Bitte beachtet die Hinweise zu den Fehlerbehebungen, in denen steht, wenn diese nicht selbstständig durchgeführt werden sollen.

Um auch im Fall von Fehlern sichern handeln zu können, ist es wichtig, die Geometrie, die Fahrwege und das Verhalten der Maschine z.b. beim Aufheben eines Not-Aus zu verstehen. In einigen Fällen kann es notwendig werden, Achsen händisch zu verschieben, damit beim nächsten Anfahren eine Kollision ausgeschlossen ist. 

Auch hier gilt: Zu zweit arbeiten an der IMA und kritische Schritte gemeinsam und mit gegenseitiger Kontrolle durchführen ist sinnvoll und ein vernünftiges und verantwortungsbewusstes Vorgehen. Dies hat uns schon vor einigen Schäden bewahrt.

Ein Beispiel: Fällt der Strom aus, während die Spindel der IMA im Werkzeugwechsel unterhalb des Maschinentischs steht, so kann beim nächsten Starten der Maschine die Spindel mit dem Werkzeugwechsler kollidieren, wenn die Referenzfahrt durchgeführt wird. In diesem Fall müssen X und Y manuell von den Zangen des Schlittens weg und die Z-Achse mit einem Schraubenschlüssel  manuell nach oben bewegt werden, bis die Spindel und ggf. Werkzeug frei oberhalb der Konsolen des Maschinentisches steht.

Allgemeine Anleitungen

Frei fahren der Maschine nach Notaus / Notstop / Neustart / Stromausfall

Das richtige Verhalten nach einem ungeplanten Stop der Maschine hängt davon ab, in welchem Modus die Maschine dabei war und in welcher Position sie zum stehen kam. Dabei unterscheiden wir zwischen folgenden Fällen:

1. Behebung: Frei. Keine Berührung, die Maschine kann frei nach oben auf eine sichere Höhe fahren

In diesem Fall muss lediglich das Auslösen der Not System quittiert werden (Notaus, Trittmatten, Achsenstop) um ein Fortfahren zu ermöglichen.
Die einfachste Methode das Programm an der abgebrochenen Position wieder fortzusetzen ist, die bereits ausgeführten Operationen in IMAWOP zu löschen und das Programm neu zu erzeugen.

2. Behebung: Stop am/im Werkstück. Berührung des Werkstücks und/oder nicht frei nach oben

Steht das BAZ vor der erneuten Freigabe noch direkt am oder im Werkstück, so muss vorher im Modus "Hand" das Werkzeug vorsichtig freigefahren werden. Ein Ausspannen des Werkstücks um das Werkzeug frei zu bekommen wäre nur in absoluten Härtfällen nötig (bisher nie beobachtet)
Dasselbe gilt für Stops im Werkzeugwechsler, sofern komplett ausgeschlossen ist, dass der Schlitten durch Bewegung gegen den Kopf zu fahren könnte.
Das Freifahren kann über den Hand-Modus umgesetzt werden. Hierfür wird der Handmodus aktiviert und alle Achsen der Reihe nach aus der Gefahrenzone gefahren.

3. Behebung: Stop am/im Wechsler oder dessen Fahrweg und/oder nicht frei nach oben

Steht das BAZ vor der erneuten Freigabe in einer Position, in der eine Kollision mit dem Werkzeugschlitten möglich ist sofern dieser sich bewegt, darf kein weitere Aktion erfolgen, auch kein Handbetrieb oder eine Referenzfahrt! Der Schlitten bewegt sich sobald die Maschine freigeben wird auf eine seiner beiden Endpositionen, dies kann nicht per Vorschub Poti verhindert oder anderweitig individuell gesperrt werden. In diesem Fall ist nur das Verschieben der Achsen mit der Hand sicher! 

4. Behebung: Referenzfahrt nach Neustart unmöglich wegen Kollisionsgefahr

Ist noch keine Referenzfahrt durchgeführt worden und eine Referenzfahrt (1. Z auf max. hochfahren, 2. Y auf min. zurückfahren, 3. X auf min. zurück fahren) birgt das Risiko einer Kollision, müssen die Achsen händisch in eine ungefährliche Position gestellt werden! Das BAZ erlaubt kein manuell gesteuerten Vorschub durch die Motoren ("Handbetrieb") ohne Referenzfahrt. Siehe "Verschieben der Achsen mit der Hand"


IconFehler
Kollisionsgefahr mit Werkzeugschlitten

Steht das BAZ in einer Position, in der der Schlitten gegen das Portal fahren könnte, darf kein Freigabe erfolgen, auch nicht für Modus Handbetrieb! Der Schlitten bewegt sich sobald die Maschine freigeben wird auf eine seiner beiden Endpositionen, dies kann nicht per Vorschub Poti verhindert oder anderweitig individuell gesperrt werden. In diesem Fall ist nur das Verschieben der Achsen mit der Hand sicher!

Werkzeug von Hand auswerfen

Erforderlich, wenn ein Werkzeug außerhalb eines Automatikmodus-Programmes ausgeworfen/abgelegt werden soll. Möglich für Wechsler- und nicht-Wechsler-Werkzeuge.

Werkzeug über MDI-Modus auswerfen
  1. In Betriebsart HAND wechseln
  2. X Achse mittig bis rechts stellen
  3. NUM Steuerung aufrufen
  4. MODE-Taste rechts neben Bildschirm betätigen, bis unten Softkey "MDI" aufgelistet wird
  5. Softkey MDI auswählen
  6. T600M6 eingeben und mit Enter bestätigen
  7. Zweimal Cycle Start drücken
  8. Wechsler-Werkzeuge werden automatisch in Wechsler abgelegt
  9. Nicht-Wechsler-Werkzeuge:
    1. Links neben Spindel stellen
    2. Mit der rechten Hand Werkzeug in der Spindel halten, dass es nicht fallen kann
    3. Mit der linken Hand roten Auswurf-Knopf an Z-Schlitten betätigen (Knopf sollte leuchten/blinken, sonst ist Auswurf nicht bereit)
    4. Roten Auswurf-Knopf erneut betätigen, um Bolzen wieder einzufahren
Werkzeug über WZEIN auswerfen
  1. In Betriebsart HAND schalten
  2. X Achse mittig bis rechts stellen
  3. Y Achse komplett vor fahren
  4. Z Achse bis zum oberen Ende fahren
  5. NUM Steuerung aufrufen
  6. Taste TOOL rechts neben Bildschirm drücken
  7. Softkey WZEIN (F2) betätigen
  8. Sicherstellen, dass kein Notaus aktiv ist
  9. Links neben Spindel stellen
  10. Mit der rechten Hand Werkzeug in der Spindel halten, dass es nicht fallen kann
  11. Mit der linken Hand roten Auswurf-Knopf an Z-Schlitten betätigen (Knopf sollte leuchten/blinken, sonst ist Auswurf nicht bereit)
  12. Roten Auswurf-Knopf erneut betätigen, um Bolzen wieder einzufahren

Werkzeug von Hand einsetzen

Erforderlich, wenn Werkzeug eingewechselt werden soll, welches nicht in Wechsler vorhanden ist (z.B. T612M6 in MDI Modus)

Werkzeug von Hand einsetzen
  1. Vorgang wird gestartet, wenn Werkzeug eingewechselt werden soll, welches nicht in Wechsler vorhanden ist (z.B. T612M6 in MDI Modus)
  2. Falls noch ein Werkzeug in der Spindel ist, wird dieses entweder automatisch im WZW abgelegt oder muss manuell entnommen werden (siehe Werkzeug von Hand auswerfen)
  3. In NUM Ebene wird im Info-Menü Fehlermeldung gezeigt: Werkzeug von Hand einsetzen
  4. Spindel fährt automatisch nach vorne
  5. Links neben Spindel stellen
  6. Roten Knopf links an Z-Schlitten betätigen → Aufnahmebolzen an Spindel wird ausgefahren
  7. Mit der rechten Hand Werkzeug in Spindel einsetzen und festhalten
  8. Roten Knopf links an Z-Schlitten betätigen → Werkzeug wird eingespannt
  9. Sicheren Sitz des Werkzeugs prüfen, Rundlauf durch händisches drehen der Spindel überprüfen
  10. In NUM Ebene wird im Achsen-Menü die Meldung gezeigt, dass das Programm fortgesetzt werden kann
  11. Cycle start setzt das Programm mit neu eingewechseltem Werkzeug fort
IconFehler

Nach Einsetzen MUSS Werkzeug auf Rundlauf geprüft werden. Wenn Werkzeug nicht fest genug an Spindel gedrückt wird, kann es eiern und bei Start der Spindelrotation zu Gefahr werden.

Verschieben der Achsen mit der Hand

Die Referenzfahrt nach dem Bootvorgang kann bei der IMA Quadroform nicht übersprungen werden!
Besteht in der aktuellen Stellung Kollisionsgefahr bei Wiederanlauf oder Referenzfahrt oder steht eine der Achsen auf einem der Hardware Endschalter, müssen die Achsen mit der Hand wieder in eine sichere Position verstellt werden.

IconFehler
Automatische Schleppkorrektur

Der Versatz zwischen der Sollposition und der Istposition des BAZ nennt sich Schlepp. Die Maschine hat ein Positionsmesssystem, dass den Schlepp konstant vermisst und im Betrieb die Motoren nachregelt. Auch beim Verschieben der Achsen mit der Hand wird dieser Versatz gemessen. Vor dem Quittieren von Notaus etc muss der "//" (Hardware Reset) auf der Folientastatur gedrückt werden, dadurch wird die aktuelle Position zum Sollwert. Ansonsten würde das BAZ nach Freigabe den Schlepp korrigieren und im Eilgang wieder zur letzten Sollposition fahren! (Ist der Schleppversatz sehr groß, wird stattdessen eine Fehlermeldung generiert)

Händisches Freischieben der Achsen

Die Motoren haben bei gesperrter Maschine keinen Haltestrom, X- und Y-Achse können mit moderatem Krafteinsatz am Portal mit der Hand verschoben werden. Die Z Achse hat eine Haltebremse, um ein unkontrolliertes Herunterfahren (und Aufschlagen am unteren Ende der Achse) zu verhindern. Die Z-Achse kann gefahrlos mithilfe des im Werkzeugschrank befindlichen 30er Gabelschlüssels am Sechskant der Motorwelle hoch oder runter gefahren werden (rechte Seite zum Bedienstand hin, direkt unter dem Antriebsriemen). Dies kann nötig sein, um zb ohne Kollision wieder über die Aufnahmeebene des Werkzeugwechslers oder der Traversen zu kommen.
Achtung - Vor Quittieren des Notaus etc muss "//" (Hardware Reset) auf der Folientastatur gedrückt werden, um den händisch verursachten Schleppversatz abzunullen. Ansonsten würde die CNC direkt nach Freigabe im Eilgang zur letzten Sollposition fahren. Ist der Versatz sehr groß, wird stattdessen eine Fehlermeldung generiert.

IMA-Z-manuell1.png

Magazindeckel öffnen

Handmodus muss aktiviert sein, dann "Magazindeckel öffnen" Taste betätigen

Maschine herunterfahren wenn Hochfahren wegen fehlender Netzwerkverbindung nicht abgeschlossen werden kann

Maschine herunterfahren
  1. Testen, ob externer Computer Verbindung zu IMA VM hat.
    1. Verbindung möglich → Probieren, durch drücken von beliebiger Taste an IMA noch einmal Verbindung herzustellen
    2. Verbindung nicht möglich → Weitere Schritte zum Herunterfahren befolgen, in #schadensmelder schreiben und Maschine außer Betrieb nehmen
  2. Alt drücken
  3. Fensterliste auswählen
  4. IMATRONIC NUM wählen
  5. Normal mit Alt + F12 herunterfahren


Fehlermeldungen in der Fehlerliste

N0001$ NOT-AUS quittieren (SPS-F:1)

✅ Diese Fehlerbehebung darf von allen eingewiesenen Nutzern durchgeführt werden.

Ein Not-Aus-Kreis ist ausgelöst und muss zurückgesetzt werden. 


Behebung bei Störungsmeldung "NOT-AUS quittieren"
  1. Taste "Not-Aus quittieren" drücken (eventuell fest und ca. 2 Sekunden). 
  2. Wenn Fehler weiter besteht: Not-Aus Taster (2 Stück) entsperren,
  3. Prüfen das Schließsystem freigeschaltet ist
  4. Taste "Not-Aus quittieren" drücken (eventuell fest und ca. 2 Sekunden). 
  5. Wenn Fehler weiter besteht: [//] Reset drücken
  6. Taste "Not-Aus quittieren" drücken (eventuell fest und ca. 2 Sekunden). 
  7. Wenn Fehler weiter besteht: Alle Not-Aus-Taster einmal auslösen und wieder aufheben; [Cycle stop] drücken; [//] Reset drücken
  8. Taste "Not-Aus quittieren" drücken (eventuell fest und ca. 2 Sekunden). 


N0004$NC-Betriebsbereit fehlt (SPS-F:4)

✅ Diese Fehlerbehebung darf von allen eingewiesenen Nutzern durchgeführt werden.

Zuerst alle anderen Fehler abarbeiten, in der Regel wird dieser Fehler dadurch behoben. Falls dies nicht der Fall ist: [//] Reset drücken.

N0007$ Druckluft fehlt (SPS-F:7)

✅ Diese Fehlerbehebung darf von allen eingewiesenen Nutzern durchgeführt werden.

Der Arbeitsdruck der Druckluftversorgung ist nicht ausreichend (min. 6 Bar).

Behebung bei Störungsmeldung "Druckluft fehlt"
  1. Hören, ob irgendwo Druckluft entweicht
    1. Falls ja (mehr als Sperrluft der Spindel): Meldung im #schadensmelder und Maschine ausschalten und sperren
    2. Falls nein, weiter mit 2.
  2. Prüfen, ob mindestens 6 Bar Luftdruck bei der IMA ankommen
    1. Wenn nicht weiter mit 1. 
    2. Wenn 6 Bar Luftdruck ankommen, weiter mit 5.
  3. Prüfen ob Kompressor angeschlossen ist
    1. Wenn nicht: Diesen anschließen
  4. Prüfen, ob der Kompressor und alle vier Kolben angeschaltet sind
    1. Wenn nicht: Den Kompressor bzw. die Kolben einschalten. Die Kolben können einzeln über die vier rechten Tasten unter dem Display eingeschaltet werden. Tasten am Kompressor dürfen immer nur kurz gedrückt werden.
  5. Falls dies nicht ausreicht, den Kompressor ausschalten, entlüften und neu starten.
  6. Das Sperrventil der IMA vollständig öffnen

Wenn dies den Fehler nicht behebt: Meldung im #schadensmelder und Maschine ausschalten und sperren

N0008$Fehler im NC-Programm (SPS-F:8)

✅ Diese Fehlerbehebung darf von allen eingewiesenen Nutzern durchgeführt werden.

Zuerst alle anderen Fehler abarbeiten, in der Regel wird dieser Fehler dadurch behoben. Falls dies nicht der Fall ist: [Cycle stop] drücken; [//] Reset drücken.

N0010$M-Funktion nicht ausgefuehrt oder ungueltig (SPS-F:10)

✅ Diese Fehlerbehebung darf von allen eingewiesenen Nutzern durchgeführt werden.

Der Fehler tritt auf, wenn der letzte M-Befehl nicht ausgeführt werden konnte. Der M-Befehl kann sowohl aus MDI als auch aus CNC-Programmen stammen. 


Behebung bei Störungsmeldung "M-Funktion nicht ausgefuehrt oder ungueltig"
  1. Programm mit [cyclestop beenden]
  2. [//] Reset drücken
  3. In NUM Steuerung wechseln, ggf. werden dort weitere Fehler angezeigt. Diese Fehler abarbeiten.
    1. Wenn keine Lösung gefunden wird: Melden im #schadensmelder

N0018$ Thermokette Bearbeitungsmotore

⚠️  Diese Fehlerbehebung darf nur gemeinsam mit den Maschinenpaten durchgeführt werden.

In diesem Fall wurde wahrscheinlich einer der Motoren überlastet und der Motorschutzschalter hat ausgelöst. Diese Schutzschalter bleiben ausgelöst, bis sie manuell zurückgesetzt werden.

IconFehler
Elektrischer Strom

Die folgenden Arbeiten dürfen nur von befugten Personen durchgeführt werden. Im Schaltschrank wird Netzspannung geschaltet!

Motorschutzschalter zurücksetzen

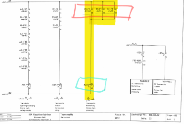
Die folgenden Grafiken zeigen die Thermokette:

grafik-19.png

Die rot markierten Elemente sind Motorschutzschalter der unterschiedlichen Aggregate, blau markiert die Spule eines Relais, welches schlussendlich den Input an die Steuerung regelt.

20221207_175702.jpg

Das mittlere Relais leuchtet orange, wenn die Kette unterbrochen und der Fehler aktiv ist.

20221207_182546.jpg

Dies sind die drei Motorschutzschalter. Auf der rechten Seite zeigt ein grüner Indikator den Status an. Steht dieser nach vorne heraus, hat der Schutzschalter ausgelöst. Durch Drücken auf den blauen Knopf kann der Schalter zurückgesetzt werden, welches sofort die orangene LED oben ausschalten sollte.

Der Fehler sollte damit behoben sein.

N0023$Bitte Vakuumpumpe einschalten (SPS-F 13)

✅ Diese Fehlerbehebung darf von allen eingewiesenen Nutzern durchgeführt werden.

Die Vakuum-Pumpe ist ausgeschaltet und muss eingeschaltet werden


Behebung bei Störungsmeldung "Vakuumpumpe einschalten"
  1. Die Vakuum-Pumpe über den Taster am Bedienpanel einschalten
  2. Wenn der Fehler weiter besteht
    1. Prüfen, ob Vakuum-Pumpe läuft (deutlich hörbar)
    2. Meldung in Schadenmelder mit Angabe ob Pumpe läuft oder nicht.

N0024$Trittmatte links betaetigt (SPS-F:24)

N0025$Trittmatte mitte betaetigt (SPS-F:25)

N0026$Trittmatte rechts betaetigt (SPS-F:26)

N0028$Trittmatte nicht quittiert (SPS-F:28)

✅ Diese Fehlerbehebung darf von allen eingewiesenen Nutzern durchgeführt werden.

Die genannte Trittmatte wurde ausgelöst oder eine Softwarefunktion erfordert eine erneute Bestätigung. Mit der Taste [Trittmatte quittieren] wird dies zurück gesetzt

N0028Trittmatte Fehler > Reset Taste (SPS-F:28)

✅ Diese Fehlerbehebung darf von allen eingewiesenen Nutzern durchgeführt werden.

[//] Reset drücken; Anschließend Trittmatte quittieren.

N0038$Sicherheitstuer soll geoeffnet werden (SPS-F:38)

✅ Diese Fehlerbehebung darf von allen eingewiesenen Nutzern durchgeführt werden.

Die Sicherheitstür ist freigeschaltet (Taster neben Tür leuchtet) oder die Freischaltung ist angefordert (Taster neben der Tür blinkt). Durch drücken des Tür-Tasters kann dies aufgehoben werden.

N0040$X-Achse in Endlage (SPS-F:40) 
N0041$Y-Achse in Endlage (SPS-F:41)
N0042$Z-Achse in Endlage (SPS-F:42)
N0043$Achse in Endlage (SPS-F:43)

✅ Diese Fehlerbehebung darf von allen eingewiesenen Nutzern durchgeführt werden.

Die IMA kann kein Programm ausführen und die Meldung "Achse in Endlage" erscheint – das bedeutet, das eine der Achsen über dem Endschalter steht.

Dies kann behoben werden, indem die Achse manuell oder im Handbetrieb bewegt wird. Wenn keine Kolissionsgefahr besteht, kann dies im Handbetrieb erfolgen. Ansonsten ist das manuelle Schieben bzw. Spindeln ist einfacher und sicherer, besonders wenn HBE oder NSE eingespannt sind. Bei den Achsen X und Y kann einfach der Ausleger bzw. der Schlitten mit der Spindel verschoben werden. Bei der Z-Achse wird der Schraubenschlüssel aus dem Werkzeugschrank und einiges an Kraft und Ausdauer benötigt, um diese Achse per Hand mit dem Schraubenschlüssel zu bewegen.

N0095$Vakuumwächter rechts nicht OK(SPS-F:95)

⚠️   Dieser Fehler kann durch Nutzer:innen nicht behoben werden. Bitte wenn nicht schon bekannt als Schaden melden.

Das Vakuum in den beiden Vakuumverteilern (je einer für die drei Traversen links und rechts) ist durch Vakuumwächter überwacht, die sicherstellen, dass das Werkstück sicher auf dem Tisch gehalten werden kann. Bei dieser Meldung kann nicht weitergearbeitet werden.

  1. Maschine ausschalten und sperren
  2. Meldung in #schadensmelder

N0096$Vakuumwächter links nicht OK (SPS-F:96)

⚠️  Dieser Fehler kann durch Nutzer:innen nicht behoben werden. Bitte wenn nicht schon bekannt als Schaden melden.

🆗  Kurzteile (x<=900mm) können rechts bearbeitet werden, wenn die linke Tischseite nicht gespannt wird.

Das Vakuum in den beiden Vakuumverteilern (je einer für die drei Traversen links und rechts) ist durch Vakuumwächter überwacht, die sicherstellen, dass das Werkstück sicher auf dem Tisch gehalten werden kann. Bei dieser Meldung kann kein Langteil (x>900mm) bearbeitet werden.


N0178$Werkzeug in Spindel n. gespannt (SPS-F:170)

⚠️  Diese Fehlerbehebung darf nur gemeinsam mit den Maschinenpaten durchgeführt werden.

Nach einem Werkzeugwechsel sitzt das Werkzeug nicht korrekt in der Spindel und muss entfernt werden. Dies kann auftreten, wenn der Werkzeugwechsel unterbrochen wurde (z.B. durch Trittmatten oder Notaus) oder beim Werkzeugwechsel die Druckluftzufuhr unterbrochen wurden. Der Sitz des Werkzeugs ist mit einem Sensor überwacht. Meldet dieser nach Spannen des Werkzeugs keinen Kontakt, ist nicht sichergestellt dass das Werkzeug korrekt aufgenommen wurde.  Der Vorgang wird abgebrochen und die Maschine hält an.

Behebung Störung Werkzeugwechsler bei gescheiterter Werkzeugaufnahme

Falls das Werkzeug im Werkzeugwechsler ist und die Spindel darauf sitzt: Eine Person zieht das Werkzeug nach vorne, eine zweite gleichzeitig die Y-Achse. Ggf. fällt das Werkzeug aus der Spindel. Wenn die Spindel dann sicher leer ist, kann auf Schritte 2 bis 5 verzichtet werden.

Wenn das Werkzeug im Wechsler gespannt ist:

  1. Auf dem Maschinentisch Platz schaffen: Traversen nach außen schieben, Werkstück entfernen
  2. In der Spanwanne weiches Material ablegen, auf dass das Werkzeug gefahrlos fallen kann (z.B. ein großer Eimer mit mindestens 30cm hoch Sägespänen darin) – möglichst bis knapp unter Höhe der Sauger.
  3. Die Z-Achse von Hand hochspindeln, dass das Werkzeug über 0-Ebene steht.
  4. Das Werkzeug über das weiche Material schieben
  5. Die Z-Achse von Hand (oder im Handbetrieb) nach unten fahren, damit das Werkzeug möglichst einen kurzen Fallweg hat. Das Werkzeug sollte nicht mehr als 10cm frei fallen. (Wird ein Eimer mit Sägespänen verwendet, kann dieser auch ggf. auf die Traversen gestellt werden, um den Fallweg zu verkürzen)
  6. Vorschub-Regler auf 0% drehen
  7. Mit der unteren [//] Reset-Taste das Programm abbrechen
  8. Fehler gemäß der Fehlerliste abarbeiten (Notaus, Trittmatten)
  9. Es kommt die Fehlermeldung "Wz. Wechsler abgebrochen mit MDI M13 quitt."
  10. Betriebsart auf MDI umschalten und M13 [ENTER] eingeben, dann die Taste [CYCLE START ] zwei mal betätigen
  11. Den Vorschub-Regler langsamerror aufdrehen. Bei Erfolg wird das Werkzeug in der Spindel gelöst und fällt runter, Z-Achse fahrt nach oben
    1. Führte M13 zu keinem Erfolg, muss wie folgt verfahren werden:
    2. Mit M31 [ENTER] [CYCLE START] das Werkzeug in der Spindel lösen – Achtung: Einmal Cycle-Start löst dies sofort aus (Werkzeug fällt runter)
    3. Mit M39 [ENTER] [CYCLE START] die Luft abschalten
    4. Polstermaterial und Werkzeug aus dem Maschinenbett entfernen.
    5. Trittmatten quittieren.
    6. Mit T600M6 [ENTER] zweimal [CYCLE START] Werkzeugwechsel auf leere Spindel normal durchführen (NUM fordert dazu auf, das schon abgeworfene Werkzeug zu entnehmen, hierfür ggf. Taste an Spindel drücken wie bei einem normalen händischen Werkzeugwechsel).
      1. Wenn T600M6 fehlschlägt: Mit E30022=0 M32 [ENTER] zweimal [CYCLE START] das Register löschen. ACHTUNG: falsche Eingabe kann wichtige Daten in der Maschine unwiederbringlich löschen. Eingabe vor Absenden nach Vieraugenprinzip kontrollieren!
  12. (wenn noch nicht passiert) Polstermaterial und Werkzeug aus dem Maschinenbett entfernen.
  13. Werkzeug überprüfen.
  14. Wenn die Ursache bekannt ist (z.B. Person auf Trittmatte getreten) und kein Crash stattfand, kann weiter gearbeitet werden. Wenn die Ursache unklar ist oder ein Crash stattgefunden hat, die Maschine ausschalten und sperren, bis diese geprüft ist.



N0182$Wz.Wechsler abgebrochen mit MDI M13 quitt. (SPS-F:182) –  (Werkzeug nicht mehr in der Spindel und Spindel steht frei)

✅ Diese Fehlerbehebung darf von allen eingewiesenen Nutzern durchgeführt werden.

Wird ein Programm im Werkzeugwechsel abgebrochen, kommt dieser Fehler. Vor der Störungsbeseitigung muss sichergestellt sein, das die Spindel frei und das Werkzeug nicht mehr eingespannt ist. Außerdem muss die Spindel hoch genug stehen, damit der Werkzeugwechsler verfahren kann, ohne mit der Spindel zu kollidieren.

Diese Anleitung gilt nicht, wenn das Werkzeug noch in der Spindel ist oder der Zustand unklar ist. Falls dies der Fall ist, die nächste Anleitung beachten.

Behebung Störung Werkzeugwechsler bei gescheiterter Werkzeugaufnahme

Wenn erforderlich zuerst Achsen händisch frei schieben bzw. mit Schraubenschlüssel bewegen.

Zur Behebung folgende Schritte ausführen

  1. Vorschub-Regler auf 0% drehen
  2. Mit der unteren [//] Reset-Taste das Programm abbrechen
  3. Fehler gemäß der Fehlerliste abarbeiten (Notaus, Trittmatten)
  4. Es kommt die Fehlermeldung "Wz. Wechsler abgebrochen mit MDI M13 quitt."
  5. Betriebsart auf MDI umschalten und M13 [ENTER] eingeben, dann die Taste [CYCLE START ] zwei mal betätigen
  6. Den Vorschub-Regler langsamerror aufdrehen
    1. Bei Erfolg wird das Werkzeug in der Spindel gelöst, Z-Achse fahrt nach oben
    2. Führt die zu keinem Erfolg, kann nicht weitergearbeitet werden und die Maschine muss gesperrt werden.
  7. Im Schadensmelder melden, das diese Fehlerbehebung durchgeführt wurde.
  8. Wenn die Ursache bekannt ist (z.B. Person auf Trittmatte getreten) und kein Crash stattfand, kann weiter gearbeitet werden. Wenn die Ursache unklar ist oder ein Crash stattgefunden hat, die Maschine ausschalten und sperren.

N0182$Wz.Wechsler abgebrochen mit MDI M13 quitt. (SPS-F:182) –  (Werkzeug noch in der Spindel oder Zustand unklar)

⚠️  Diese Fehlerbehebung darf nur gemeinsam mit den Maschinenpaten durchgeführt werden.

Wird ein Programm im Werkzeugwechsel abgebrochen, kommt dieser Fehler. Wenn das Werkzeug noch in der Spindel ist (gespannt oder nicht), muss zunächst festgestellt werden, ob das Werkzeug noch gespannt ist. Ist es nicht gespannt, kann es von Hand entnommen werden.

Behebung Störung Werkzeugwechsler bei gescheiterter Werkzeugaufnahme

Falls das Werkzeug im Werkzeugwechsler ist und die Spindel darauf sitzt: Eine Person zieht das Werkzeug nach vorne, eine zweite gleichzeitig die Y-Achse. Ggf. fällt das Werkzeug aus der Spindel. In diesem Fall kann gemäß der Anleitung für den Zustand ohne Werkzeug in der Spindel weiter gearbeitet werden.

Wenn das Werkzeug im Wechsler gespannt ist:

  1. Auf dem Maschinentisch Platz schaffen: Traversen nach außen schieben, Werkstück entfernen
  2. In der Spanwanne weiches Material ablegen, auf dass das Werkzeug gefahrlos fallen kann (z.B. ein großer Eimer mit mindestens 30cm hoch Sägespänen darin) – möglichst bis knapp unter Höhe der Sauger. 
  3. Die Z-Achse von Hand hochspindeln, dass das Werkzeug über 0-Ebene steht.
  4. Das Werkzeug über das weiche Material schieben
  5. Die Z-Achse von Hand (oder im Handbetrieb) nach unten fahren, damit das Werkzeug möglichst einen kurzen Fallweg hat. Das Werkzeug sollte nicht mehr als 10cm frei fallen. (Wird ein Eimer mit Sägespänen verwendet, kann dieser auch ggf. auf die Traversen gestellt werden, um den Fallweg zu verkürzen)
  6. Vorschub-Regler auf 0% drehen
  7. Mit der unteren [//] Reset-Taste das Programm abbrechen
  8. Fehler gemäß der Fehlerliste abarbeiten (Notaus, Trittmatten)
  9. Es kommt die Fehlermeldung "Wz. Wechsler abgebrochen mit MDI M13 quitt."
  10. Betriebsart auf MDI umschalten und M13 [ENTER] eingeben, dann die Taste [CYCLE START ] zwei mal betätigen
  11. Den Vorschub-Regler langsamerror aufdrehen. Bei Erfolg wird das Werkzeug in der Spindel gelöst und fällt runter, Z-Achse fahrt nach oben
    1. Führte M13 zu keinem Erfolg, muss wie folgt verfahren werden:
    2. Mit M31 [ENTER] [CYCLE START] das Werkzeug in der Spindel lösen – Achtung: Einmal Cycle-Start löst dies sofort aus (Werkzeug fällt runter)
    3. Mit M39 [ENTER] [CYCLE START] die Luft abschalten
    4. Polstermaterial und Werkzeug aus dem Maschinenbett entfernen.
    5. Trittmatten quittieren.
    6. Mit T600M6 [ENTER] zweimal [CYCLE START] Werkzeugwechsel auf leere Spindel normal durchführen (NUM fordert dazu auf, das schon abgeworfene Werkzeug zu entnehmen, hierfür ggf. Taste an Spindel drücken wie bei einem normalen händischen Werkzeugwechsel).
      1. Wenn T600M6 fehlschlägt: Mit E30022=0 M32 [ENTER] zweimal [CYCLE START] das Register löschen. ACHTUNG: falsche Eingabe kann wichtige Daten in der Maschine unwiederbringlich löschen! Eingabe vor Absenden nach Vieraugenprinzip kontrollieren!
  12. (wenn noch nicht passiert) Polstermaterial und Werkzeug aus dem Maschinenbett entfernen.
  13. Werkzeug überprüfen.
  14. Wenn die Ursache bekannt ist (z.B. Person auf Trittmatte getreten) und kein Crash stattfand, kann weiter gearbeitet werden. Wenn die Ursache unklar ist oder ein Crash stattgefunden hat, die Maschine ausschalten und sperren, bis diese geprüft ist.

N0194$Absaughaube 50mm nicht oben (SPS-F: 194)
N0195$Absaughaube 50mm nicht unten (SPS-F: 195)
N0196$Absaughaube 160mm nicht oben (SPS-F: 196)
N0197$Absaughaube 160mm nicht unten (SPS-F: 197)

🆗  Diese Meldung bedarf keiner Aktion.

Dieser Fehler wird angezeigt, wenn die Taste aktiv ist, mit der die Absaugung nach unten gefahren wird, dies aber noch nicht passiert ist. Das Programm kann bei diesem Fehler einfach gestartet werden. Der Fehler verschwindet, sobald die Absaugung durch das Programm nach unten gefahren wird.

N0199$Stroemungswaechter Kuehlmittel (SPS-F: 199)

⚠️  Diese Fehlerbehebung darf nur gemeinsam mit den Maschinenpaten durchgeführt werden.

Das Kühlmittel der Spindel ist durch einen Strömungswächter überwacht. Bei dieser Meldung darf nicht weitergearbeitet werden.

  1. Maschine ausschalten und sperren
  2. Meldung in #schadensmelder

N0212$Magazin nicht am Rechtsanschlag (SPS-F:212)

🆗  Diese Meldung bedarf keiner Aktion.

Die Position des Werkzeugmagazins wird nicht kontinuierlich abgefragt. Der Fehler verschwindet, sobald die Abfrage erneut erfolgt.


Andere Bekannte Fehler

IMAWOP: WINBAZ caused a General Protection Fault

Ursachen

Dieser Fehler tritt beim erzeugen des CNC Programms auf und kann zwei bisher bekannte Ursachen haben:

  • Das CNC Programm ist zu groß. Dieses Programm tritt hauptsächlich beim erzeugen von Programmen mit Estlcam auf. Die FMC Datei darf in etwa 700kB Dateigröße nicht übersteigen, sonst muss die FMC Datei in mehrere Dateien unterteilt werden.
  • Ein Fehler in der Konfiguration von IMAWOP liegt vor. Bitte gib den Maschinenpaten oder im Kanal #schadensmelder Bescheid.

Ein Neustarten von IMAWOP wird das Problem nicht lösen.

Beheben des Fehlers



Programm startet, nichts passiert, keine Fehlermeldung (auch nicht auf NUM Ebene), Programm läuft weiter

Beheben des Fehlers

Möglicherweise ist das Teil zu groß, um ohne "Langteil" bearbeitet zu werden.

  1. Programm beenden (Cycle Stop, unterer Hardware Reset)
  2. Programm neu zur Arbeitsliste hinzufügen
  3. Fehler aus Fehlerliste beheben (evtl. Z-Achse nicht oben → im Hand Modus Z-Achse auf Maximum fahren)
  4. Langteil aktivieren
  5. Programm starten


N????$ Werkzeug noch in Spindel ?

Diese Meldung bedeutet einen gescheiterten Werkzeugauswurf. War der automatische Auswurf nicht erfolgreich (Sensor meldet Werzeugaufnahme in der Spindel), kann die Störung durch manuelles Auswerfen des Werkzeugs und anschliessende Befehlseingabe abgeschlossen werden


IconFehler
Kollisionsgefahr am Werkzeugwechsler

Die folgende Anleitung muss in exakt der vorgegebenen Reihenfolge ausgeführt werden! Das Werkzeug muss zwingend per Hand entnommen werden, bevor der Befehl eingetippt wird. Durch die Freigabe von Register E30022 "vergisst" das BAZ, dass ein Werkzeug eingesetzt wurde. Bliebe es trotzdem in der Spindel, würde die Maschine bei einem regulären Wechsel mit hoher Geschwindigkeit die Werkzeuge im Magazin rammen!

IconFehler
Gefahr durch fallendes Werkzeug

Wird ein Werkzeug manuell aus der Spindel ausgeworfen, muss es dabei festgehalten werden! Es fällt sonst unkontrolliert nach unten und kann dabei sich und alle empfindlichen Teile die es trifft (Schläuche, Sensormatten, Fuss des Benutzers) zerstören!

Behebung Störung Werkzeugwechsler bei gescheitertem autom. Ablegen eines Werkzeugs

Zur Behebung eines gescheiterten Werkzeugauswurfes muss folgendes Prozedere exakt in dieser Reihenfolge ausgeführt werden:

  1. mit der [ // ] Reset Taste das Programm abbrechen
  2. Betriebsart in Hand umschalten [TOOL]
  3. Taste Tool betätigen
  4. Mit der Werkzeugentnahme -Taste am Maschinenkopf das Werkzeug auswerfen (Vorsicht, nicht fallen lassen!)
  5. Betriebsart in MDI umschalten
  6. "E30022=0 M32" eintragen, Taste [enter] betätigen Taste [CYCLE START ] zwei mal betätigen
  7. Das Werkzeug noch nicht ins Magazin zurücklegen und sicherstellen dass der Platz leer ist
  8. Kommt noch die  Fehlermeldung "Wz. Wechsler abgebrochen mit MDI M13 quitt.", mit Punkt 9 fortfahren, ansonsten mit Punkt 13
  9. den Drehregler "Vorschub" auf 0 drehen (Kopf kann sich nicht bewegen)
  10. Betriebsart auf MDI umschalten und M13[ENTER] eingeben, dann die Taste [CYCLE START ] NC Start zwei mal betatigen
  11. den Drehregler "Vorschub" langsam aufdrehen
  12. Es wird trocken ein "Auswurf des Werkzeugs" durchgeführt, die Verriegelung der Spindel gelöst, Z-Achse fahrt nach oben
  13. Werkzeug wieder an seinen vorgesehenen Platz im Magazin stecken
  14. Nun kann man die Betriebsart auf Automatik umschalten und das Programm neu starten

 

Spindel ist leer, Maschine stoppt ohne Fehlermeldung sobald ein Werkzeug aufgenommen werden soll

Das Werkzeugregister geht trotz leerer Spindel und von einem eingelegten Werkzeug aus und muss gelöscht werden. Die Fehlerliste in diesem Zustand ist leer, jede Werkzeugaufnahme führt wiederholbar zu einem Stop. Bohrer hingegen werden bei dieser Störung normal aktiviert, da sie keinen Werkzeugwechsel erfordern.

IconFehler
Kollisionsgefahr am Werkzeugwechsler

Absolut sicherstellen, dass tatsächlich kein Werkzeug oder Fremdkörper in der Spindel ist! Durch die Freigabe von Register E30022 "vergisst" das BAZ, dass ein Werkzeug eingesetzt wurde. Wäre trotzdem etwas in der Spindel, würde die Maschine bei einem regulären Wechsel mit hoher Geschwindigkeit die Werkzeuge im Magazin rammen!

Behebung Störung Werkzeugwechsler bei gescheitertem autom. Ablegen eines Werkzeugs

Zur Behebung eines vermeintlich gescheiterten Werkzeugauswurfes muss folgendes Prozedere ausgeführt werden:

  1. Betriebsart in MDI umschalten
  2. "E30022=0 M32" eintragen, Taste [enter] betätigen Taste [CYCLE START ] zwei mal betätigen
  3. Nun kann man die Betriebsart auf Automatik umschalten und das Programm neu starten


N????$ Überlänge Überbreite und WKZ

Es wurde ein überlanges (in X-Richtung, mehr als die Hälfte der Spanntraversen benutzt) und überbreites Werkstück (steht in Y-Richtung nach vorne über die Traversen hinaus) gespannt.
WKZ bezeichnet den Werkzeugwechsler. Gemeint ist damit, dass das Werkstück per Definition auf ganzer Maschinenlänge nach vorne über den Werkzeugwechsler ragen könnte.
Es gibt dadurch keine Zone mehr, in der garantiert ohne Kollision auf den  Werkzeugwechsler zugegriffen werden kann, so dass seine Benutzung nicht zugelassen ist.

Behebung bei irrtümlich gesetzter Überlänge/Breite

Ist die Einstellung ohne Absicht ausgeführt worden und das Werkstück passt entweder in der Länge in eine Häfte der Bearbeitungszone oder aber steht nicht vorne über, so genügt es den Modus Überbreite (gelb) oder den Modus Überlänge (blau) wieder zu verlassen, um den Werkzeugwechsler benutzen zu können.

NUM-keyboard_1.png

Bearbeitung übergroßer Werkstücke

Ist das Werkstück sowohl überlang als auch überbreit, müssen die Werkzeuge anderweitig zur Verfügung gestellt werden. Wird nur einzelnes Werkzeug benötigt, kann es automatisch eingewechselt werden, in dem der Vorgang vor dem Spannen des Werkstücks per MDI Befehl erfolgt.
Dazu wird der Modus der NUM-Steuerung auf MDI geändert. Als Befehl "M6 T<Werkzeugnummer>" eingeben und mit der Taste "Enter" bestätigen. Zweimaliges drücken auf "Cycle Start" führt das Einwechseln aus.

Werden mehrere Werkzeuge benötigt, müssen sie jeweils manuell in die Spindel eingesetzt und danach wieder entfernt werden. Siehe TODO-Manuelles Werkzeugwechseln

 

Wenn andere Fehler auftreten, die hier nicht dokumentiert sind, unbedingt in #Schadensmelder melden!